- Via dell’artigianato, lotto 12 Corsano (LE)
Tecnomotion 82 MAX
La scorrevole “tutto vetro” per grandi aperture
TECNOMOTION 82 MAX di InfissiTecno è la versione “tutto vetro” della scorrevole alzante TECNOMOTION 82. Grazie a profili ulteriormente ridotti, aumenta la superficie vetrata fino a +7 cm in larghezza e +13 cm in altezza rispetto alla versione standard. Ideale per ambienti moderni e luminosi, unisce design minimale, isolamento elevato e accessibilità senza barriere.
Caratteristiche principali
- Massima superficie vetrata per ambienti luminosi
- Profili ridotti per un effetto “tutto vetro”
- Rinforzi per ante di grandi dimensioni
- Soglie ribassate per accessibilità
- Integrazione semplice con schermature e oscuranti
- Vasta gamma di finiture e colori






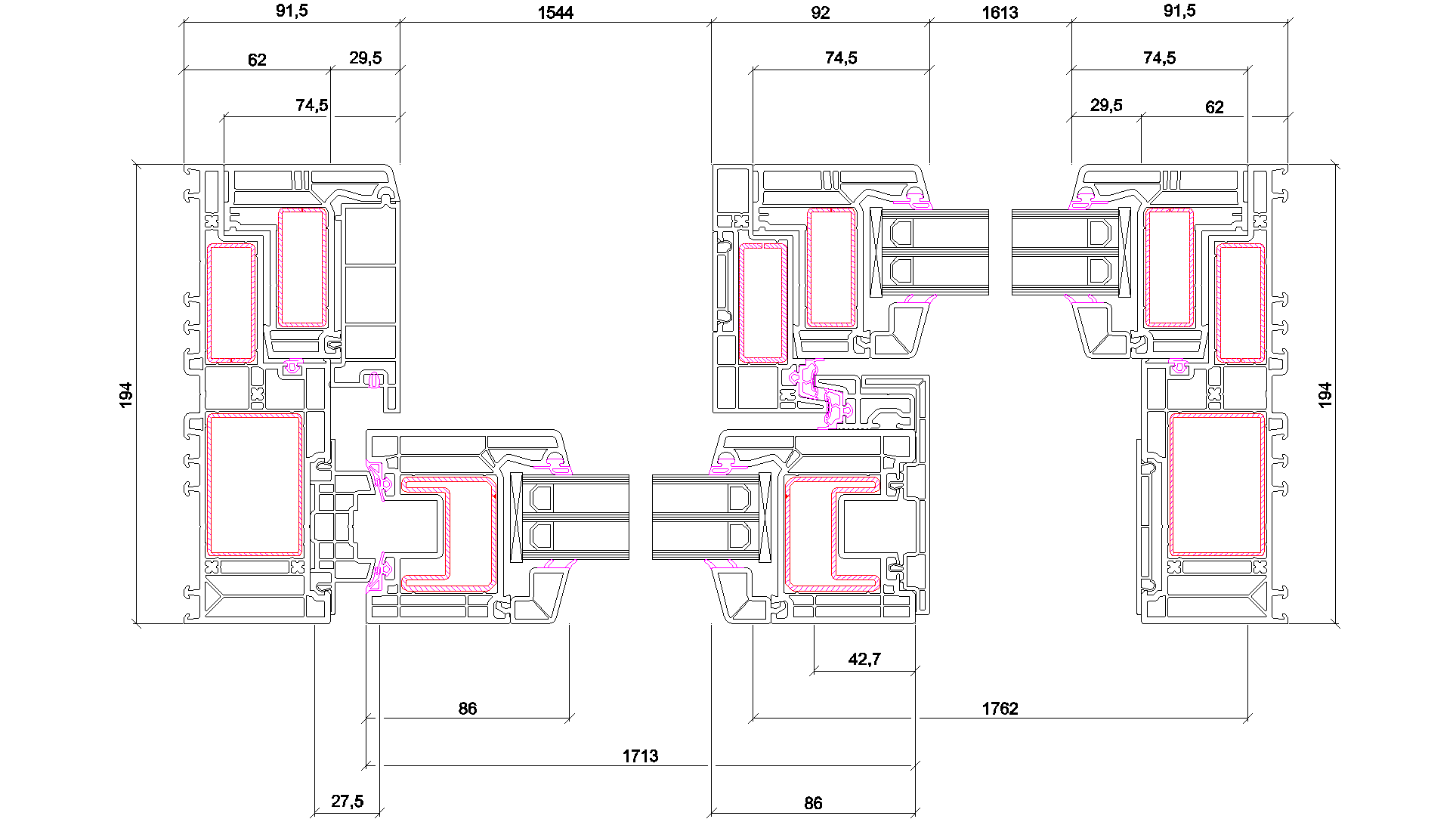
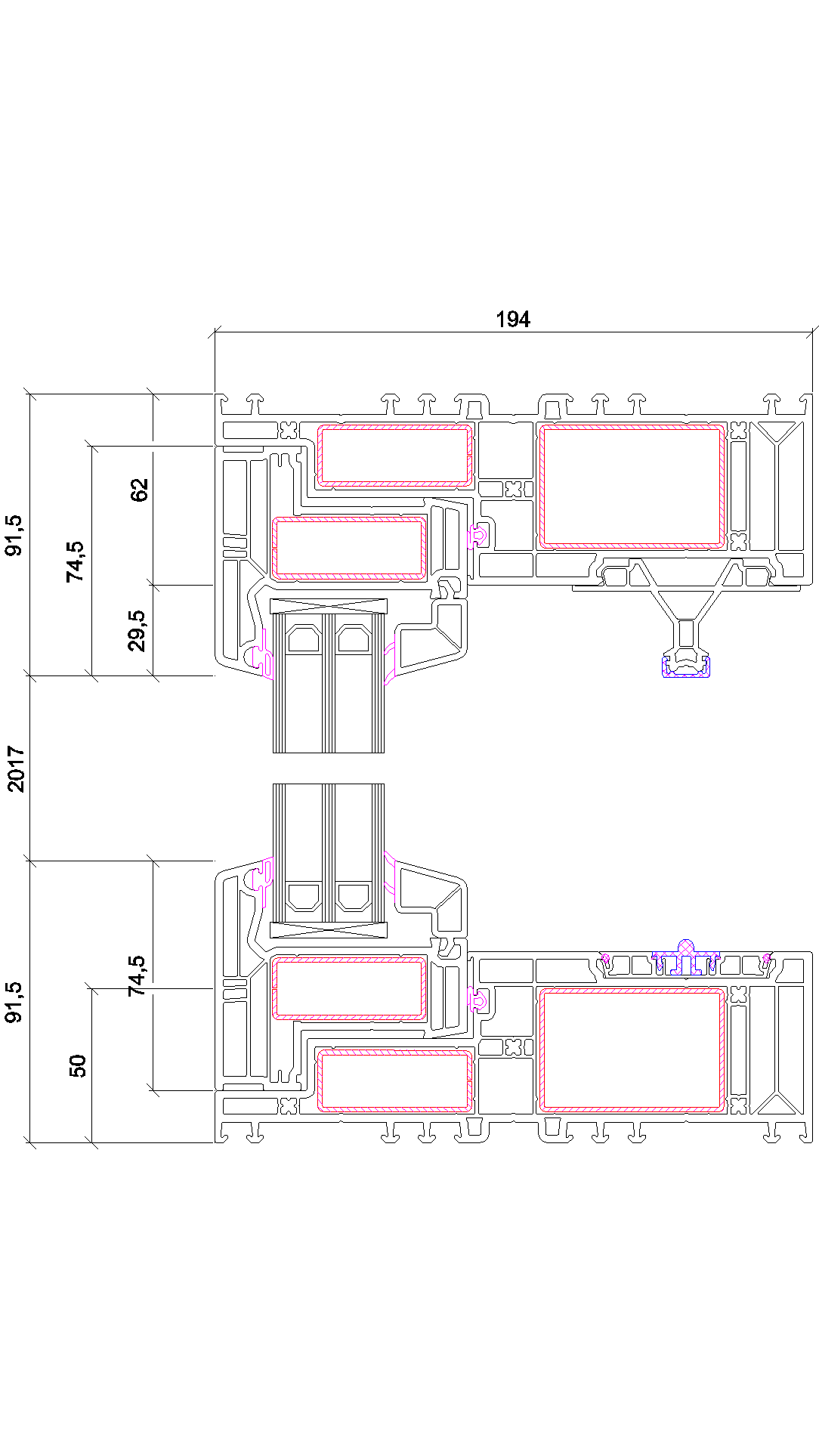
Dati tecnici

- Profondità telaio: 82 mm
- Trasmittanza termica Uw: fino a 0,78 W/m²K
- Spessore vetro massimo: 54 mm
- Altezza anta: 86 mm
- Larghezza nodo centrale: 92 mm
- Incremento superficie vetrata: +7 cm larghezza / +13 cm altezza
- Finiture: ampia gamma cromatica
- Permeabilità aria: Classe 4
- Tenuta acqua: classe 9a
- Resistenza al vento: classe b3
Sezioni
Design ed estetica
Con un concept costruttivo innovativo e profili ridotti al minimo, TECNOMOTION 82 MAX valorizza la luce naturale trasformando il vetro nell’elemento protagonista. Perfetta per progetti moderni ed eleganti che richiedono grandi aperture e trasparenza.
Isolamento e comfort
Grazie a vetri tripli fino a 54 mm e profili multicamera, offre prestazioni termiche e acustiche eccellenti. La trasmittanza Uw può scendere fino a 0,78 W/m²K, migliorando il comfort e l’efficienza energetica dell’edificio.
Stabilità e durata
I rinforzi interni e la soglia in PVC di nuova concezione permettono a TECNOMOTION 82 MAX di mantenere stabilità e funzionalità anche con ante di grandi dimensioni. Materiali resistenti garantiscono lunga durata e manutenzione minima.
Accessibilità e praticità
La soglia ribassata facilita l’accesso, mentre i carrelli compatti e i profili dedicati riducono l’ingombro, valorizzando la superficie vetrata. Il sistema si integra facilmente con oscuranti esterni e offre un’ampia possibilità di personalizzazione cromatica, per adattarsi a ogni esigenza progettuale ed estetica.
Finiture
| MASSA | BIANCA | BIANCA | CARAMELLO | MARRONE | BIANCA | RAL9001 | RAL9001 | CARAMELLO | BIANCA | BIANCA | BIANCA | GRIGIA | CARAMELLO | BIANCA | GRIGIA | BIANCA | RAL9001 |
| COLORE GUARNIZIONE | GRIGIA | NERA | CARAMELLO | NERA | GRIGIA | GRIGIA | GRIGIA | CARAMELLO | GRIGIA | NERA | GRIGIA | NERA | CARAMELLO | GRIGIA | NERA | GRIGIA | GRIGIA |
| RIVESTITO ESTERNO | ![]() | ![]() | ![]() | ![]() | ![]() | ![]() | ![]() | ![]() | ![]() | ![]() | ![]() | ![]() | ![]() | ![]() | ![]() | - | - |
| RIVESTITO INTERNO | - | - | ![]() | ![]() | ![]() | ![]() | ![]() | ![]() | ![]() | ![]() | ![]() | ![]() | ![]() | ![]() | ![]() | - | - |
| COLORE | GOLDEN-OAK/BIANCO | NUSSBAUM/BIANCO | GOLDEN-OAK | NUSSBAUM | WEISS | CREMEWEISS | SHEFFIELD OAK LIGHT | WINCHESTER | GOLDEN OAK WEISS FOL | NUSSBAUM WEISS FOL | VSP WEISS ULTRAMATT | VSP ANTHRAZITGRAU ULTRAMATT | HONEY OAK | VERKEHWEISS FEINSTRUKTUR | ANTHRAZITGRAU FEINSTRUKTUR | BIANCO MASSA | AVORIO MASSA |































