- Via dell’artigianato, lotto 12 Corsano (LE)
Tecnomotion 82
La scorrevole alzante per spazi moderni
TECNOMOTION 82 di InfissiTecno è la scorrevole alzante in PVC progettata per rispondere alle esigenze contemporanee di comfort e luminosità. Grazie a profili sottili e proporzioni ottimizzate, aumenta la superficie vetrata riducendo l’impatto visivo dei telai del 20% rispetto ai sistemi tradizionali. Ideale per grandi aperture, offre isolamento eccellente e accessibilità senza barriere.
Caratteristiche principali
- Profili multicamera con profondità di 82 mm
- Superficie vetrata maggiore del 20%
- Rinforzi innovativi per stabilità su grandi dimensioni
- Soglie ribassate per accessibilità senza barriere
- Integrazione semplice con oscuranti e schermature
- Ampia gamma di colori e finiture






Dati tecnici

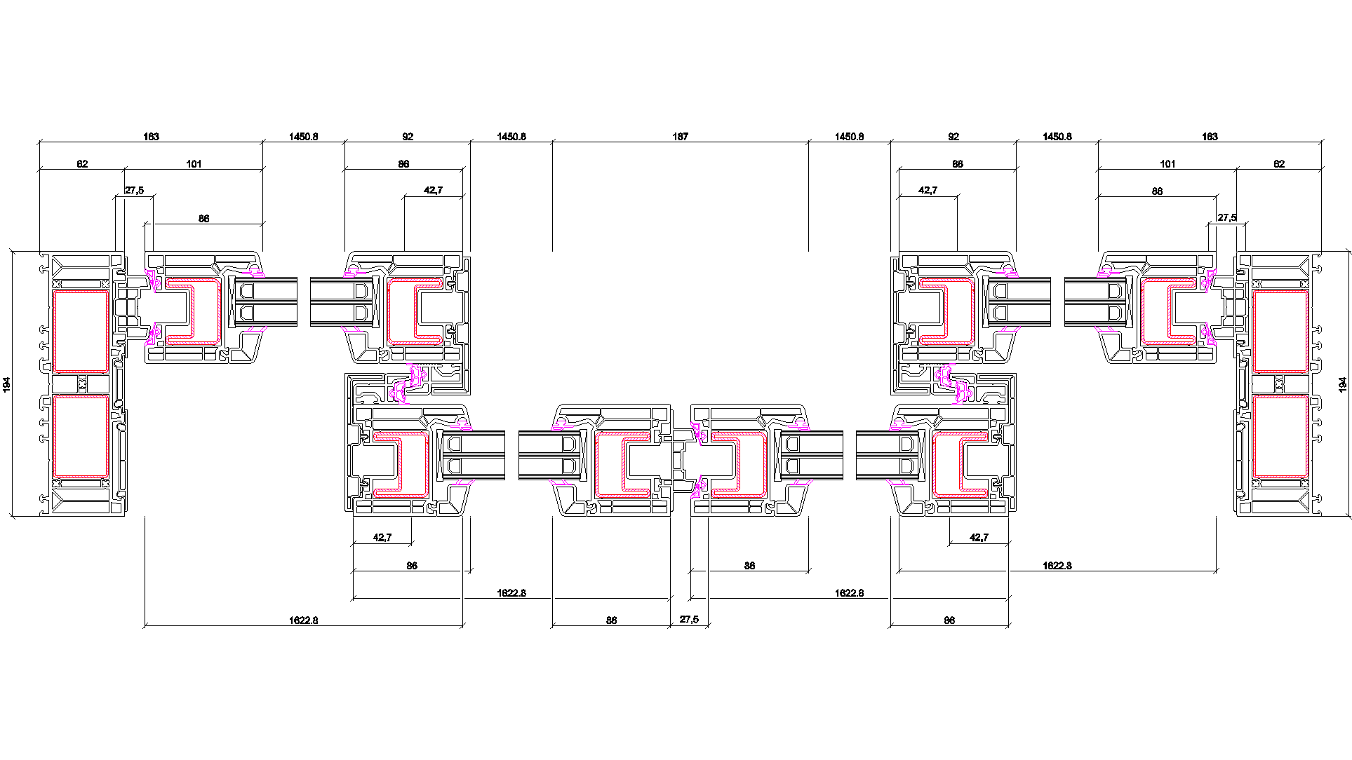
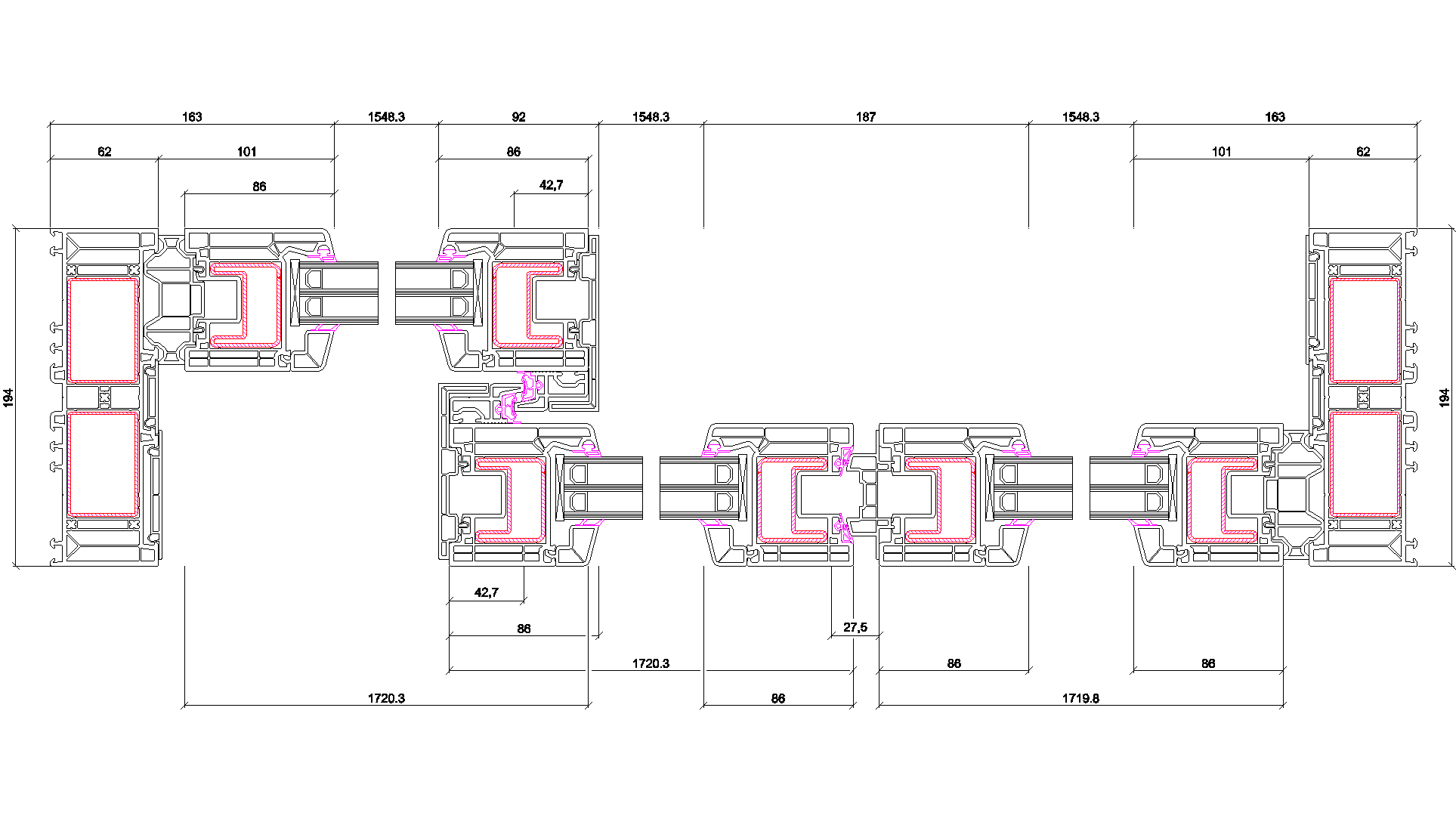
- Profondità telaio: 82 mm
- Trasmittanza termica Uw: fino a 0,78 W/m²K
- Spessore vetro massimo: 54 mm
- Altezza anta: 86 mm
- Larghezza nodo centrale: 92 mm
- Finiture: ampia gamma cromatica
- Permeabilità aria: classe 4
- Tenuta acqua: classe 9a
- Resistenza al vento: classe b3
Sezioni
Design ed estetica
Linee pulite, proporzioni leggere e finiture personalizzabili rendono TECNOMOTION 82 la soluzione ideale per valorizzare ambienti contemporanei. Con più vetro e meno profilo, la luce naturale diventa protagonista, migliorando la percezione dello spazio.
Isolamento e comfort
Le geometrie multicamera e i vetri performanti fino a 54 mm garantiscono isolamento termico e acustico eccellente. Il sistema può raggiungere valori di trasmittanza fino a Uw 0,78 W/m²K, contribuendo a risparmio energetico e comfort abitativo.
Stabilità e durata
Rinforzi metallici specificamente progettati e soglia robusta permettono a TECNOMOTION 82 di sostenere il peso di ante di grandi dimensioni, mantenendo solidità e funzionalità nel tempo. I materiali resistenti agli agenti atmosferici assicurano longevità.
Accessibilità e praticità
La soglia a pavimento in PVC e la possibilità di versioni ribassate facilitano l’accesso senza barriere. I carrelli compatti e i profili sottili riducono l’ingombro visivo, lasciando spazio alla luce e al vetro.
Finiture
| MASSA | BIANCA | BIANCA | CARAMELLO | MARRONE | BIANCA | RAL9001 | RAL9001 | CARAMELLO | BIANCA | BIANCA | BIANCA | GRIGIA | CARAMELLO | BIANCA | GRIGIA | BIANCA | RAL9001 |
| COLORE GUARNIZIONE | GRIGIA | NERA | CARAMELLO | NERA | GRIGIA | GRIGIA | GRIGIA | CARAMELLO | GRIGIA | NERA | GRIGIA | NERA | CARAMELLO | GRIGIA | NERA | GRIGIA | GRIGIA |
| RIVESTITO ESTERNO | ![]() | ![]() | ![]() | ![]() | ![]() | ![]() | ![]() | ![]() | ![]() | ![]() | ![]() | ![]() | ![]() | ![]() | ![]() | - | - |
| RIVESTITO INTERNO | - | - | ![]() | ![]() | ![]() | ![]() | ![]() | ![]() | ![]() | ![]() | ![]() | ![]() | ![]() | ![]() | ![]() | - | - |
| COLORE | GOLDEN-OAK/BIANCO | NUSSBAUM/BIANCO | GOLDEN-OAK | NUSSBAUM | WEISS | CREMEWEISS | SHEFFIELD OAK LIGHT | WINCHESTER | GOLDEN OAK WEISS FOL | NUSSBAUM WEISS FOL | VSP WEISS ULTRAMATT | VSP ANTHRAZITGRAU ULTRAMATT | HONEY OAK | VERKEHWEISS FEINSTRUKTUR | ANTHRAZITGRAU FEINSTRUKTUR | BIANCO MASSA | AVORIO MASSA |































